Ensacadeira de Sopro
Ensacadeira de Sopro - ES
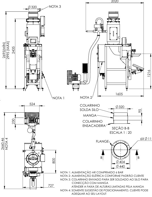
Equipamento empregado no ensaque de diversos produtos em sacarias do tipo Valvulado. O ensaque é realizado por condução do produto por fluxo de ar através de um bico de dosagem, proporcionando alta produtividade, precisão de peso e otimização da mão de obra.
Diferenciais da Ensacadeira
Precisão de Pesagem
Produtividade
Fácil Operação
Suporte Técnico
(Presencial / Remoto)
Baixo Custo de
Manutenção
Prazo de
Entrega

Especificações Técnicas
Aplicações:
- Grãos
- Pó
- Farelo
- Pellets
Características Técnicas:
- Tipo de Ensaque: Transporte por fluxo de ar
- Tipo de Embalagem: Sacaria Valvulada
- Capacidade: até 60 kg
- Tipo de material: Aço carbono ou contados com produto em inox (opcional).
Opcionais:
- Esteiras de saída
- Plataforma Check Weigher
- Esteira Check Weigher
- Impressora para etiquetas
- Seladora de sacarias
- Aplicador de sacarias
Downloads:
Desenho técnico

FAQ - Perguntas Frequentes
Este equipamento permite uma alta velocidade de ensaque proporcionada pelo fluxo/pressão de ar, garantindo aumento expressivo na produção. Devido as características técnicas de autocorreção do peso ensacado em tempo real, este equipamento realiza um ajuste fino a cada ensaque realizado garantindo a excelência na precisão do peso ensacado.
Normalmente são utilizadas as sacarias de válvula de topo e as sacarias de válvula lateral que são compostas por tipos de materiais tais como: Ráfia, Papel, Plástico, entre outros.
Sim. Os equipamentos Embrasack possibilitam a comunicação com os principais protocolos de comunicação industrial, tais como: Ethernet IP, Modbus TCP, MQTT, entre outros. Consulte-nos para maiores informações.
As ensacadeiras de Sopro são equipamentos robustos, porém simples de manuseio e necessitam de conhecimento básico para a sua manutenção que são transmitidos pelos técnicos da Embrasack durante o Startup dos equipamentos ou em caso de necessidade pelo suporte técnico realizado remotamente (telefone / whatsapp) ou localmente de acordo com a necessidade do cliente.